配电箱有民用的,也有特殊行业专用的。配电箱顾名思义就是用来提供一个电源分路开关的设备,把一些电器元件集中起来放置在一个箱子里面,就形成配电箱了。至于它的作用是:方便停、送电,起到计量和判断停、送电的作用。常用于各发、配、变电所中。今天小编就给大家分享关于配电箱的相关知识,希望对大家有用处。

(1)配电箱的主要技术参数

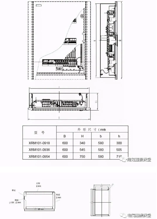
(2)配电箱的外形及安装尺寸


(3)配电箱的使用条件


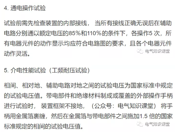
(4)测试项目及测试步骤



(5)配电箱的用途


(6)配电箱型号编制说明

(7)配电箱的使用特点

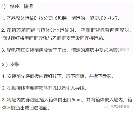
(8)配电箱的包装、储运、安装、使用及维修




